Wirtschaftsförderung Ostholstein
Gewerbeflächen im Kreis Ostholstein

Gewerbeflächen und -immobilien
Das Portal für den Kreis Ostholstein

Gewerbefläche im EKZ in Oldenburg in Holstein, Kreis Ostholstein

Objektart
Einzelhandel/Ladenlokal

Geografische Lage der Immobilie

Detail-Ansicht
Lage des Objektes
Stadt/Gemeinde
Oldenburg in Holstein
Adresse
Kieler Chaussee 8
PLZ
23758
Adresse öffentlich anzeigen
PLZ, Adresse und Punkt
Lage
Gewerbegebiet
Lagebeschreibung
Die angebotene Fläche befindet sich in der Kieler Chaussee 8, 23758 Oldenburg in Holstein – einer verkehrsgünstigen und gut sichtbaren Lage am südlichen Stadtrand. Die Kieler Chaussee verbindet das Stadtzentrum mit den umliegenden Ortschaften und ist Teil des Zubringers zur B202 sowie zur A1 (Anschlussstelle Oldenburg Süd). Die Stadt Oldenburg gilt als Zentrum des Feriengebietes Weissenhäuser Strand, Heiligenhafen und der Insel Fehmarn mit einem Einzugsgebiet von ca. 120.000 Einwohnern. Das direkte Umfeld ist geprägt durch eine durchmischte Struktur aus Einzelhandel, Handwerk und Wohnen. Dadurch ergibt sich ein solides Einzugsgebiet mit hohem Potenzial für Laufkundschaft und Stammkundenbindung. 46 Stellplätze befinden sich direkt auf dem Grundstück. Im nahen Umfeld stehen weitere Stellplätze zur Verfügung. Die Anbindung an den öffentlichen Nahverkehr ist durch Buslinien in fußläufigerEntfernung gewährleistet. Nach Fertigstellung des neuen Kreisverkehrs ist die Zu- und Abfahrt zur B202 und zur Stadtmitteoptimiert.

Allgemeine Kenndaten

Verfügbarkeit
01.07.2026
Nutzungsmöglichkeiten
Einzelhandel
Baujahr
1996
Nutzfläche (m²)
3.751
Grundstücksfläche (m²)
9.094
Bürofläche (m²)
167
Produktions-/Lagerfläche (m²)
696
Ladenfläche (m²)
2.782
Sonstige Fläche (m²)
106
Anzahl Geschosse
2
Anzahl Stellplätze
46
Fläche teilbar
ja
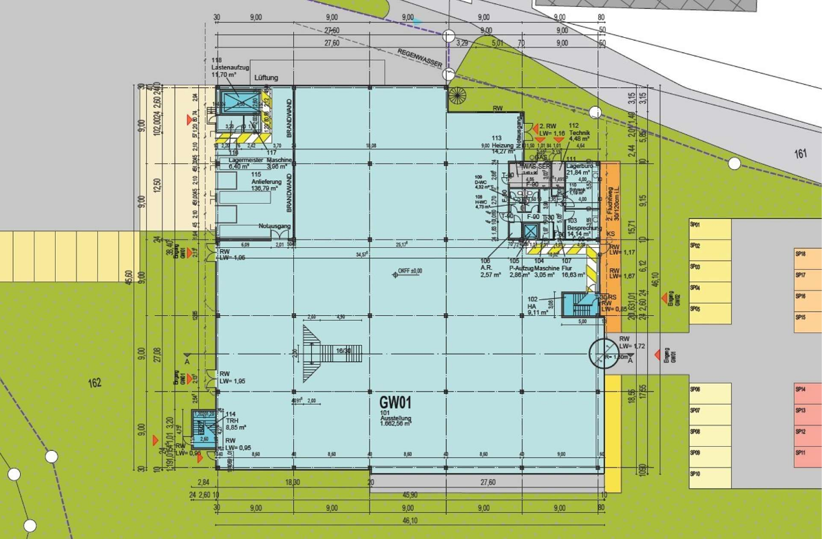
Objektbeschreibung
Die attraktive Einzelhandelsfläche erstreckt sich über zwei Etagen mit einer Gesamtfläche von ca.3.751 m² und bietet ideale Voraussetzungen für einen großflächigen Einzelhändler, Fachmarkt oder ein modernes Shop Konzept. Bei Teilflächenanmietung beträgt die netto Kaltmiete 10€ pro m². Highlights der Fläche: • großzügige Verkaufsbereiche • lichte Raumhöhen von ca. 3,50 m für eine ansprechende Warenpräsentation • flexible Raumaufteilung für Verkaufsflächen, Lager, Personal- und Sozialräume • voll erschlossene technische Infrastruktur (Strom, Daten, Klima, Lüftung) • Automatische Türanlage • hervorragende Anlieferungsmöglichkeiten durch große Fläche hinter dem Gebäude • 3 Rampen, eine mit Hebebühne • direkte Zu-Abfahrt zur B202, an der A1 gelegen • 46 Kunden-Stellplätze Die Handelsfläche profitiert von einer stark frequentierten Lage in unmittelbarer Nähe zu bekannten Anbietern wie Rewe, Penny, Medimax und weiteren Nahversorgern, die eine hohe Kundenfrequenz garantieren. Das Umfeld bietet beste Sichtbarkeit, weitere Parkmöglichkeiten und Synergien mit den umliegenden Geschäften und Märkten. Vertragskonditionen und weitere Details sind in Absprache mit dem Vermieter zu verhandeln. Mietbeginn nach Vereinbarung. Zukünftig wird der Verkehrsfluss durch einen neuen Kreisverkehr nochmals optimiert.

Details und Ausstattung

Rampe vorhanden
ja
Lastenaufzug vorhanden
ja
Personenaufzug vorhanden
ja
Heizungsart
Zentralheizung (Gas)

Sonstige Angaben

Deckenhöhe (m)
3,5
LKW-Befahrbarkeit
ja

Preise

Vermarktungsart
Miete
Kaltmiete (pro m² monatlich)
8
Kaution (Text)
Die Kaution beträgt 3 Gesamtmieten.
Kommentar zum Preis
Alle Preise ohne Angabe der gesetzlichen Mehrwertsteuer verstehen sich netto (zzgl. 19% gesetzl. MwSt.). Die Einzelhandelsfläche verfügt über eine eigene Heizungsanlage. Die Heizkosten werden vom Mieter direkt mit dem Versorger abgerechnet.
Provision
ja

Alle Preise in Euro.

Fotos

  • Frontansicht
    Frontansicht
  • Nebeneingang
    Nebeneingang
  • Warenausgabe - Warenannahme
    Warenausgabe - Warenannahme
  • EG Treppe
    EG Treppe
  • Eingangs- Ausgangsbereich
    Eingangs- Ausgangsbereich
  • OG Glasdach
    OG Glasdach
  • OG Verkauf 1
    OG Verkauf 1
  • OG Verkauf 2
    OG Verkauf 2
  • Personenaufzug
    Personenaufzug
  • Lastenaufzug um Lager EG
    Lastenaufzug um Lager EG
  • EG Lager
    EG Lager
  • OG Lager
    OG Lager

Kontakt

Ansprechpartner
Kay Seifert
Drenkhahn Immobilien
Immobilienberater
Rosa-Luxemburg-Straße 9
18055 Rostock
PDF (Deutsch) PDF (Englisch) Exposé schließen

Kontakt

Kay Seifert
Drenkhahn Immobilien
Immobilienberater
Rosa-Luxemburg-Straße 9
18055 Rostock