Wirtschaftsförderung Ostholstein
Gewerbeflächen im Kreis Ostholstein

Gewerbeflächen und -immobilien
Das Portal für den Kreis Ostholstein

Lagerhalle mit Bürokomplex in Göhl, Kreis Ostholstein

Objektart
Industrie mit Büro

Geografische Lage der Immobilie

Detail-Ansicht
Lage des Objektes
Stadt/Gemeinde
Göhl
Adresse
Neukoppel
PLZ
23758
Adresse öffentlich anzeigen
PLZ, Adresse und Punkt
Lage
Gewerbegebiet
Lagebeschreibung
Das Grundstück liegt etwa 500 Meter nordöstlich des Zentrums in Göhl. Die Neukoppel verläuft in diesem Bereich in Nord-Süd-Richtung. Das Grundstück befindet sich an der östlichen Straßenseite. Das etwa 1 Kilometer entfernte Oldenburg i.H. bietet nahezu alles, was der tägliche Bedarf fordert: Geschäfte und Banken bieten ihre Dienste an, einige Vereine und Verbände stehen den Bürgerinnen und Bürgern offen, Arztpraxen, Apotheken, Kirche, Kindergarten und Grundschule runden das Angebot ab. Der Ort Gröhl ist mit dem Bus gut erreichbar. Göhl liegt etwa drei Kilometer östlich von Oldenburg i.H. in der Nähe des Oldenburger Grabens in einem sumpfigen Niederungsgebiet. Über Oldenburg i.H. besteht Anschluss an die Bundesautobahn 1 und die Bahnlinie in Richtung Neustadt i.H.. Bis zur Fehmarnsundbrücke sind es im weiteren Verlauf der A1 und der B 207 rund 21 km. Diese beiden Straßen werden auch Europastraße 47 oder "Vogelfluglinie", genannt und so wird nach etwa 33 km der Fährhafen Puttgarden auf der Insel Fehmarn mit seiner Fährverbindung nach Dänemark erreicht. Die B 202 verbindet Oldenburg mit der Landeshauptstadt Kiel.

Allgemeine Kenndaten

Verfügbarkeit
03/2026
Nutzungsmöglichkeiten
Lagerfläche, Werkstatt, Produktionsfläche mit Büro
Baujahr
2001
Nutzfläche (m²)
900
Bürofläche (m²)
250
Produktions-/Lagerfläche (m²)
650
Anzahl Geschosse
2
Anzahl Stellplätze
6
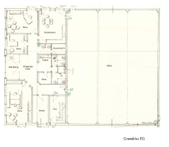
Objektbeschreibung
Die Halle wurde 2001 massiv gebaut, ist mit einem flach geneigten Dach erstellt und gedämmt. Der untere Hallenbereich besitzt eine Lagerfläche von insgesamt ca. 400 m². Auf einer zweiten Lagerebene, die über eine Treppe erreichbar ist, stehen ca. weitere 250 m² Lagerfläche zur Verfügung. Die gesamte Halle ist beheizbar, eine Heizung sowie Strom (230V+400V) und Beleuchtung sind vorhanden An der Westseite befindet sich ein Rolltor mit Laderampe. In die Halle wurde ein massiver Bürokomplex eingebaut, der sich über zwei Etagen erstreckt und eine Grundfläche von ca. 250m² aufweist. Im Erdgeschoss befinden sich vier Büros. Ein fünftes Büro wurde durch den Vormieter als Werkstatt genutzt, könnte aber auch wieder als Büro genutzt werden. Ein Glasfaseranschluss für schnelles Internet ist ebenfalls vorhanden. Zu den Büros gelangt man über einen großzügigen Empfangsbereich mit Windfang und Eingangsdiele. Es sind außerdem zwei Küchen sowie ein Abstellraum vorhanden. Nach Bedarf kann eine Betriebsleiterwohnung ausgewiesen werden. .

Details und Ausstattung

Besondere Ausstattung
Rolltor mit Laderampe

Preise

Vermarktungsart
Miete
Kaltmiete (gesamt monatlich)
5.000
Kaution (Text)
Drei Nettokaltmieten

Alle Preise in Euro.

Fotos

Kontakt

Ansprechpartner
Sebastian Boye
ENZIO Grundbestiz GmbH
Hackendohrredder 8
23684 Scharbeutz
PDF (Deutsch) PDF (Englisch) Exposé schließen

Kontakt

Sebastian Boye
ENZIO Grundbestiz GmbH
Hackendohrredder 8
23684 Scharbeutz